Парышевская

Местоположение
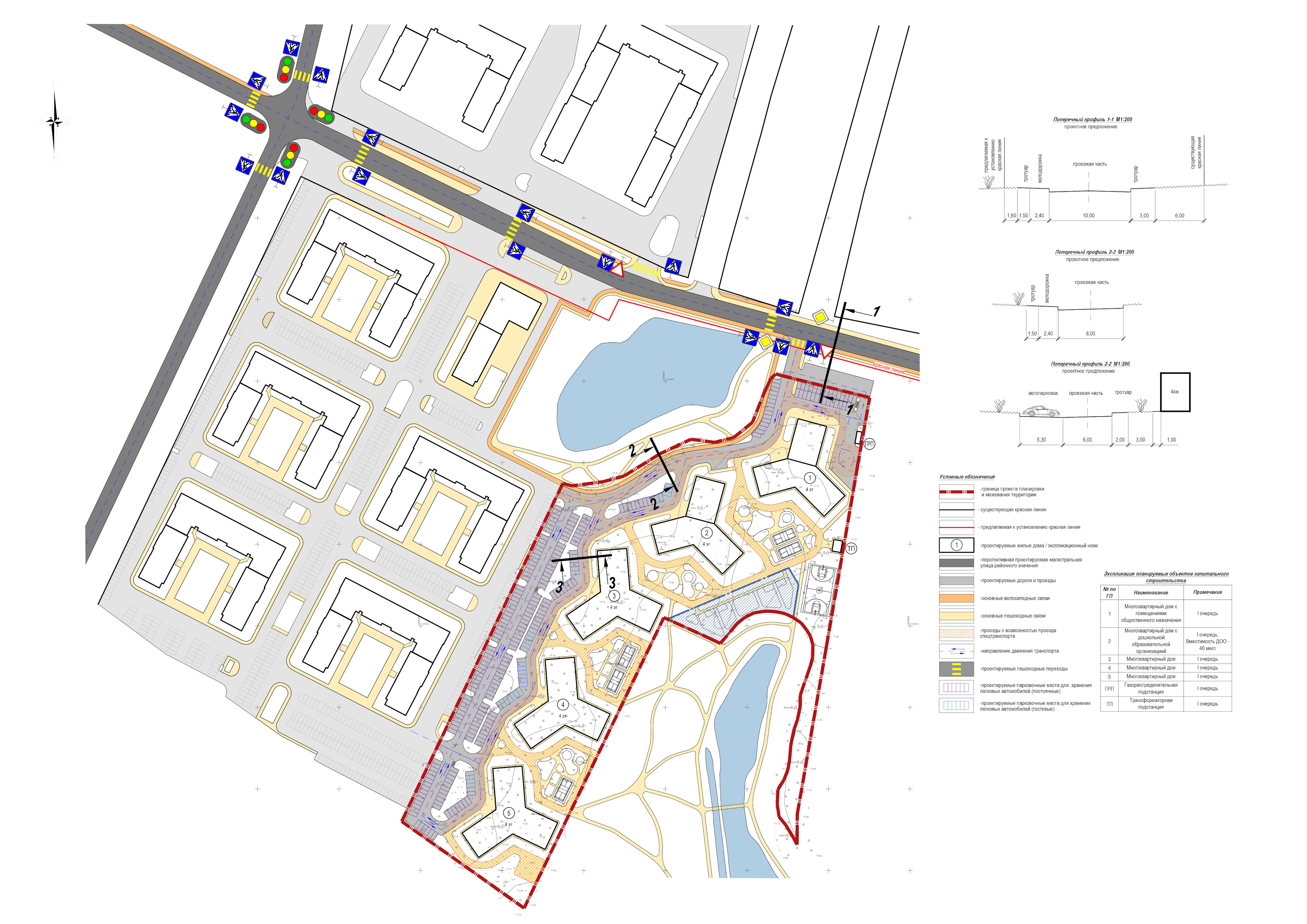
Нижний Новгород , Автозаводский район, в 15 метрах на запад от жилого дома № 48А по ул. Парышевская
Статус
Проект Планировки и межевания территории
Год
2021 - 2022
Заказчик
Альфакапстрой
Площадь разрабатываемой территории
3,85га
Общая площадь зданий
10 467 м2

О проекте

Разрабатываемая форма участка сложная. С северной стороны — автодорога местного значения. С востока - индивидуальная жилая застройка. С южной и северо-западной сторон участок окружён зелёным массивом. С северо-запада и юго-востока от границы участка располагаются небольшие озёра. Жилая застройка расположена по периметру проектируемой территории вдоль границ проекта планировки и межевания территории. В застройке присутствуют многоквартирные жилые дома, этажность которых составляет 4 этажа, а также помещения общественного назначения в многоквартирном доме (№1 по ГП) и дошкольная образовательная организация, в многоквартирном доме (№2 по ГП).

Освоение территории ведётся в 1 очередь. В рамках первой очереди предполагается последовательная реализация строительства жилого комплекса, состоящего из пяти многоквартирных домов с постройкой необходимой инфраструктуры, в т.ч. дошкольной образовательной организацией в 4 этапа.

Первая очередь реализации включает:

1 этап. Подготовка территории:  инженерная подготовка территории для размещения зданий и сооружений, в том числе: 

-вертикальная планировка территории,

-организация отвода поверхностных вод,

-защита территории от подтопления и затопления,

-создание условий для размещения зданий и прокладки подземных инженерных сетей.

2 этап. Строительство объектов инженерной инфраструктуры:

- электрические сети;

- сети газоснабжения;

- водопровод;

- сети связи;

- канализация бытовая/ливневая.

Подключение к инженерным коммуникациям, подведённым на территорию.

3 этап. Строительство объектов капитального строительства и строительство объектов транспортной инфраструктуры:

- многоквартирных домов №1,2 3, 4, 5 по ГП;

- объектов коммунально - складского назначения ТП, ГРП.

- внутриквартальные проезды к зданиям и сооружениям;

- парковочные площадки для автомобилей. Данная очередь в полном объёме обеспечивается парковочными местами в соответствии с расчётом количества парковочных мест.

- территории дошкольной образовательной организации;

4 этап. Благоустройство территории:

- строительство тротуаров и велодорожек;

-строительство площадок общего пользования различного назначения;

-устройство наружного освещения;

-озеленение территории.

Местоположение