Гостиница Совнаркомовская

Местоположение
Нижний Новгород , Канавинский район, на пересечении улиц Совнаркомовская и Мануфактурная
Статус
Проект
Год
2019 - 2019
Заказчик
НвскНН
Площадь застройки
982м2
Общая площадь зданий
5 169м2

О проекте

Участок   находится в зоне многофункциональной застройки городского центра и городских подцентров за пределами исторического района и охранных зон объектов культурного наследия, что позволило запроектировать здание гостиницы. Здание состоит из 6-ти надземных этажей, и 1 этажа подземной автостоянки. Здание, имеющее квадрат в основании, вырастая из земли, поднимается объемом с равномерной сеткой окон по трем сторонам, на 5 этажей. Из этого монументального объема, "вытекает" - стеклянная бионическая форма. Главный вход сформирован с улицы Мануфактурная. 

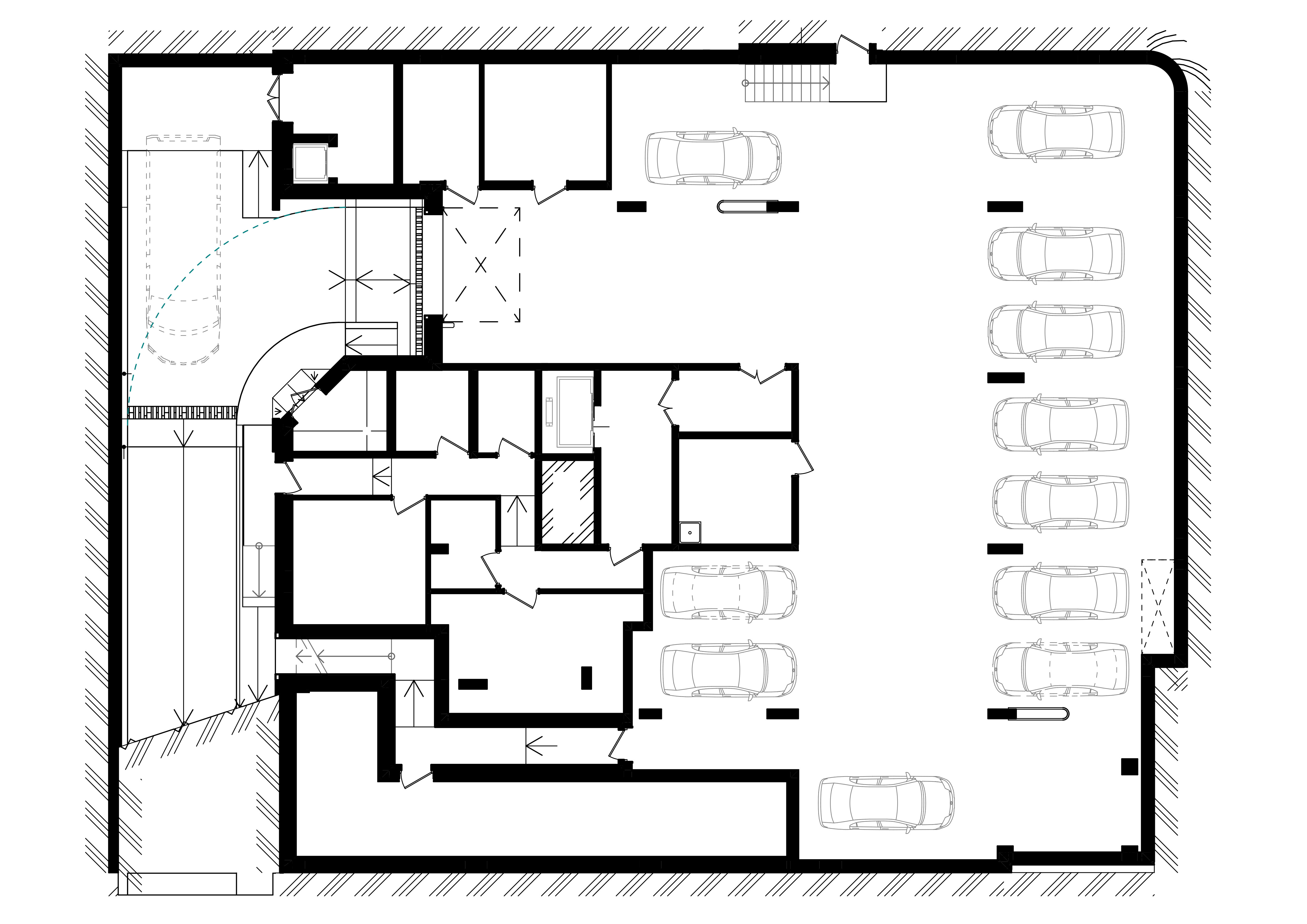
На первом этаже располагаются ресепш, конференцзал, зал кафе. Их расположение ориентировано на пересечение с улицей Совнаркомовская. Так же на этаже размещается блок обслуживания с помещениями персонала гостиницы и кухня. Со 2 по 6 этаж располагаются гостиничные номера В подземной части здания - парковка на 14 машиномест, инженерно-технические помещения и зона загрузки кафе. Здание гостиницы имеет центровой узел в виде вертикальных коммуникаций - лифтов, лестницы типа Н3 и одной лестницы типа Н2.

Номера гостиницы расположенны вокруг цетрового лестнично-лифтового ядра. На каждом этаже есть световых карманы холла для естественного освещения. Удобство, комфорт и компактность - основные принципы при проектировании номеров. Общее количество гостиничных номеров - 60

Презентабельный облик комплекса обеспечен использованием современных фасадных решений. Наружные ограждающие конструкции выполняются из наборных железобетонных панелей, с разной типовой поверхностью - отшлифованной, не отшлифованной и с использованием высокотехнологической сплошной печатью, а так же светопрозразные системы. В решении фасадов предполагается использовать сочетание массивной стеновой сетки сплошного вертикального остекления, которое должно облегчить восприятие здания, сделать его пропорции более стройными. Светопрозрачные ограждающие конструкции выполняются из высокоэффективных витражных алюминиевых систем с заполнением светопропускающими двухкамерными стеклопакетами. Цокольная часть выполнена из темных железобетонных наборных отшлифованных панелей.

Местоположение