краснозвездная
Местоположение
Нижний Новгород , улица Краснозвездная, Советский районСтатус
ПроектГод
2020 - 2021Заказчик
Группа Компаний АгроспецтехГенпроектировщик
Группа Компаний АгроспецтехПлощадь разрабатываемой территории
0,407 гаПлощадь застройки
1 230 м2Общая площадь зданий
9 323,5 м2Авторский коллектив
О проекте
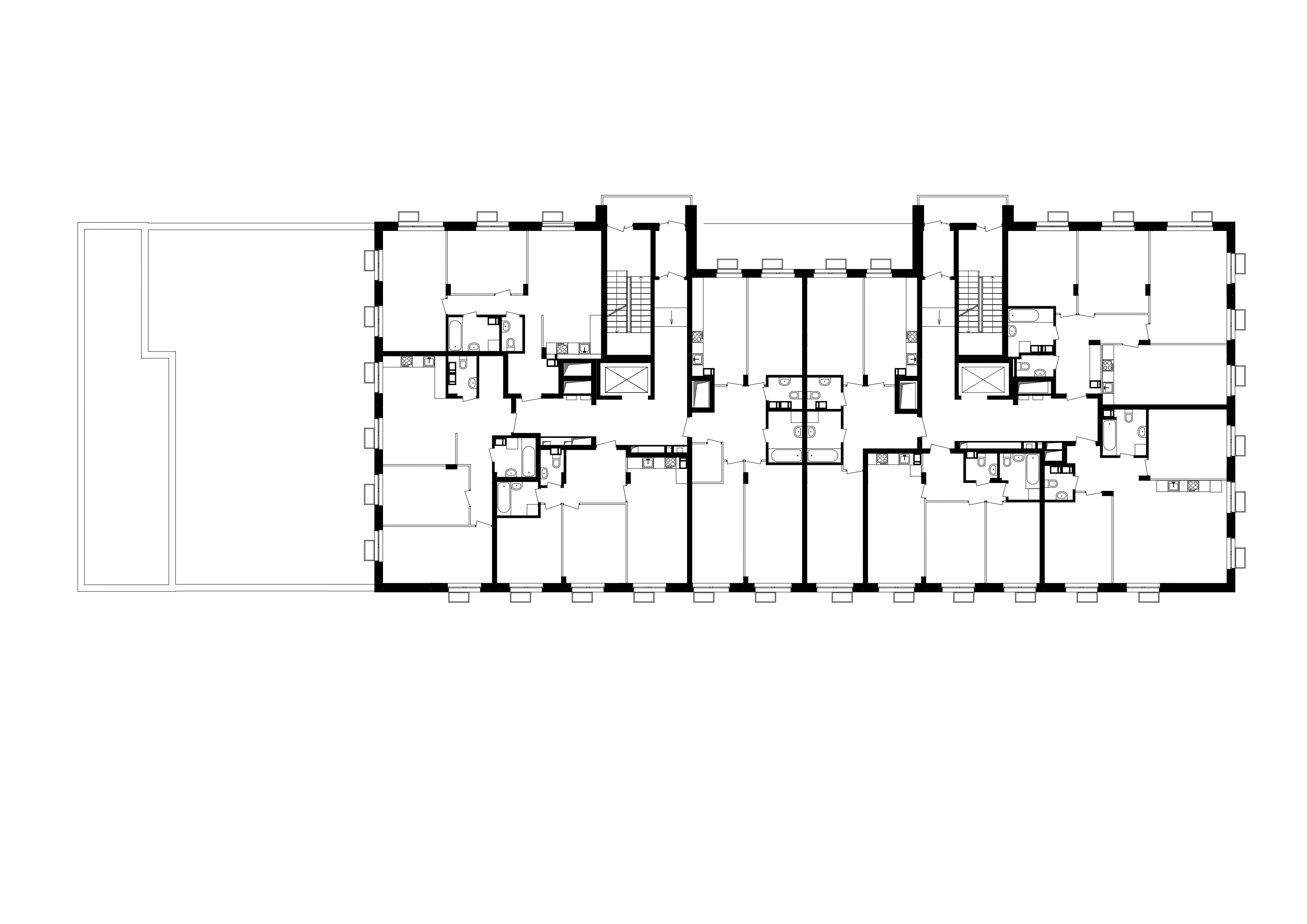
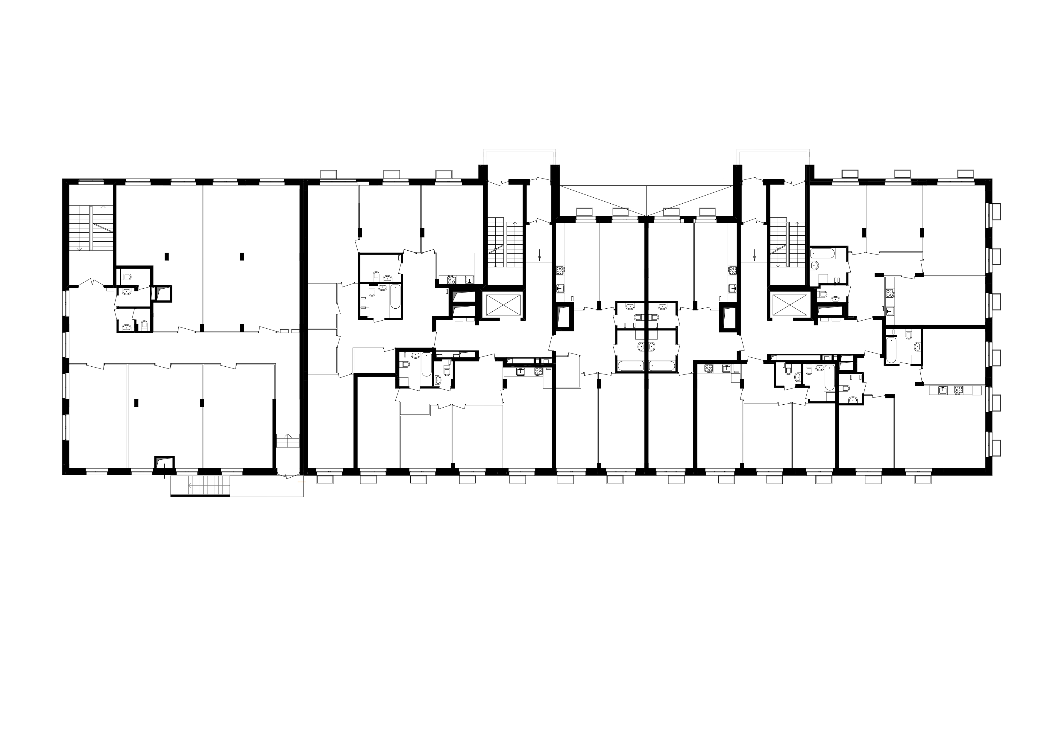
Территория проектируемого здания характеризуется значительными перепадами рельефа, что оказало влияние на характер объемно-пространственного решения многоквартирного дома. На проектируемой территории предусмотрено размещение многоквартирного жилого дома с пристроенной дошкольной организацией и подземной стоянкой автомобилей, хозяйственной площадки, площадки для отдыха взрослого населения, а также игровых и физкультурных площадок для детей.
В окружении дома создана удобная инфраструктура с магазинами, школами и детскими садами в шаговой доступности. Вблизи комплекса расположены Дворец спорта, бассейн Дельфин, университет им. Лобачевского и один из крупнейших аквапарков России - «Океанис».
Здание - простое, прямоугольное в плане, возвышается двумя пропорционально составленными объёмами, соединяющимися между собой архитектурными приёмами и элементами.
Проектируемый объект капитального строительства состоит из 9-ти этажного жилого дома, пристроенного 2-х этажного детского образовательного учреждения, помещений общественного назначения, а так же встроенной подземной автостоянки, расположенной в подземной части здания. Вместимость подземной автостоянки составляет 57 м/м. Въезд в автостоянку располагается с северной стороны жилого дома и осуществляется по однопутной рампе.
Решение фасадов основано на цветовом членении. В нижней части фасада используются тёмно-серые тона, в средней части светло-серые тона, верхняя часть в красно-коричневых тонах.
Фасадные решения проектируемого жилого дома обеспечивают масштабность и визуальную связь с окружающей застройкой, способствуют гармоничному оформлению. Концепция фасадного решения комплекса заключается в индивидуализации дома за счёт придания узнаваемого облика.