ЖК КМ Тимирязевский
Местоположение
Нижний Новгород , Советский район, в границах улиц Пушкина - ТимирязеваСтатус
ПроектГод
2020 - 2023Заказчик
ГК Каркас МонолитГенпроектировщик
СС ПроектПлощадь разрабатываемой территории
1,2076 гаПлощадь застройки
5 922 м2Общая площадь зданий
59 194м2Авторский коллектив
О проекте
Участок отведённый для проектирования группы 19-ти этажных жилых домов с подземной стоянкой определён проектом планировки территории. Земельный участок отведённый для проектирования группы 19-ти этажных жилых домов с подземной стоянкой расположен в границах улиц 2-я Оранжерейная, туп. Оранжерейный в Советском р-не г. Нижнего Новгорода. Подъезд к группе жилых домов предусматривается с улицы 2-я Оранжерейная, а после строительства с дороги районного значения соединяющей ул. Пушкина и Тверской проезд. Рельеф участка имеет выраженный уклон в южном, юго-западном направлении. Перепад высот по площадке варьируется от 173,60 м до 151,70 м.
Проектом предлагается освоение территории в две очереди. Первая очередь предусматривает реализацию объекта на отметках 163,00-165,00 м с устройством подпорной стены (подземной автостоянки), которая и возьмёт на себя конструктивную нагрузку. У основания подпорной стены проектом предусмотрена зона спортивных площадок, выход на которые будет осуществляться из нижнего уровня лестнично-лифтового узла. Также из лестнично-лифтового узла автостоянки можно попасть на верхнюю площадку расположенную между жилыми домами. Вторая очередь предусматривает засыпку оставшегося оврага(южная часть участка) до планировочных отметок, при этом спортивная зона также будет поднята до планировочных отметок. За относительную отметку 0,000 принята отметка пола первого этажа, что соответствует абсолютной отметке 173,200.
Функциональное зонирование территории.
На проектируемой территории предусмотрено размещение группы 19-ти этажных жилых домов с подземной стоянкой, хозяйственной площадки, а также игровых и физкультурных площадок для детей. Проектируемый комплекс, а также детские и физкультурные площадки расположены на территории с учетом требований норм инсоляции помещений и площадок. Въезд на территорию предусмотрен с двух сторон с внутриквартальных проездов. Пешеходно-транспортная схема решена в увязке с существующей ситуацией квартала.
Объемно-планировочная структура здания
Проект группы жилых домов выполнен в соответствии с требованиями строительных, пожарных, санитарно- эпидемиологических норм и требований, обеспечивающими безопасную для жизни и здоровья людей эксплуатацию объекта. Все проектные решения группы жилых домов направлены на эффективное использование земельного участка, максимально возможный выход площадей, создание внешнего облика зданий, органично вписывающихся в окружающую среду.
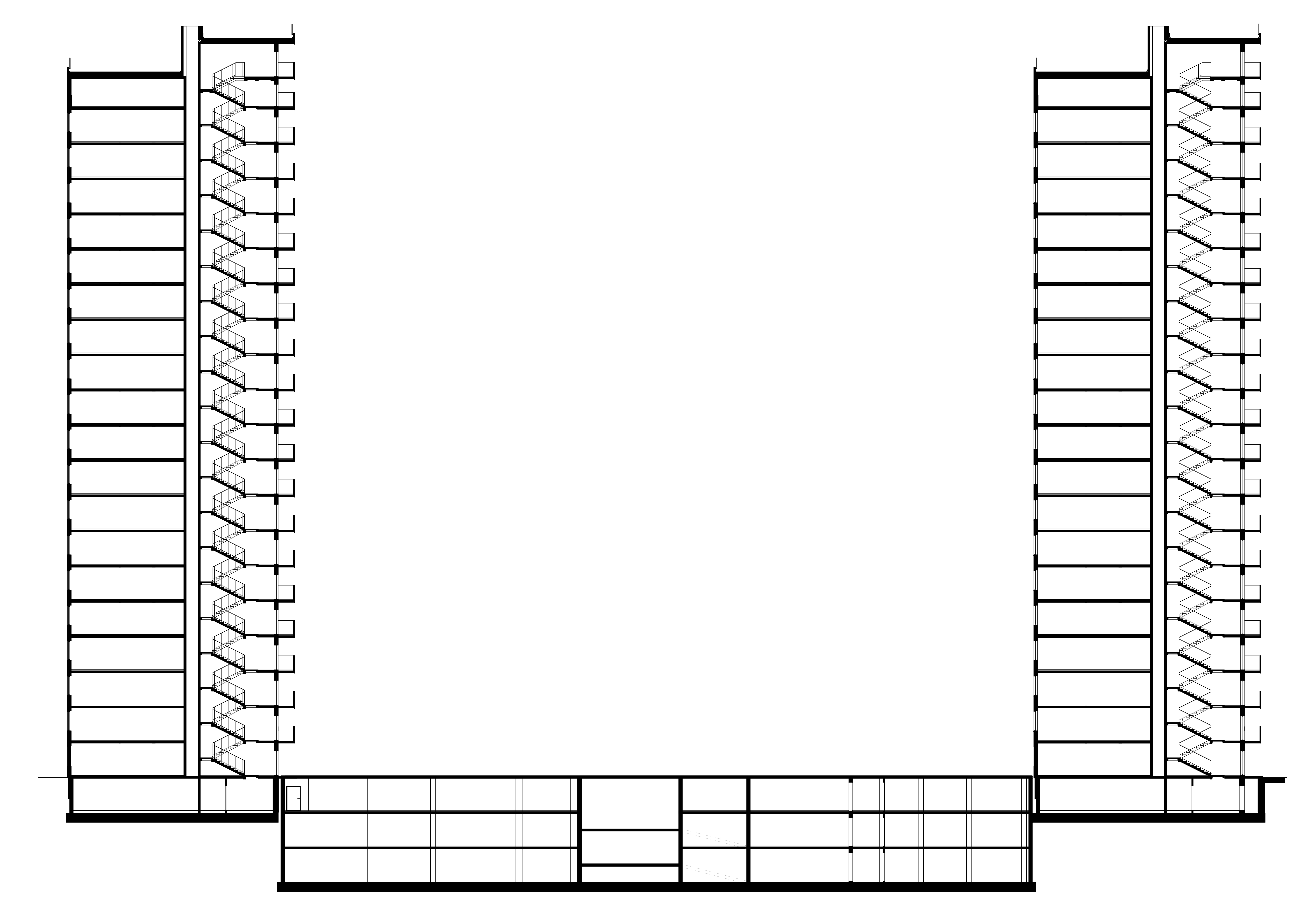
Проектируемый комплекс состоит из трех 19-ти этажных жилых домов с помещениями общественного назначения, а так же встроенно-пристроенной трехуровневой подземной автостоянки, расположенной между зданиями, а также домом (номер 8-2 по генплану). Въезд в автостоянку располагается под односекционным домом (номер 8-3 по генплану). Жилые дома имеют непосредственный вход в автостоянку через тамбур-шлюзы. Проектируемый дом (номер 8-1 по генплану) 19-ти этажный, с тремя подземными этажами.
Фасадные решения проектируемого жилого коплекса обеспечивают масштабность и визуальную связь с окружающей застройкой, способствуют гармоничному оформлению. Концепция фасадного решения комплекса заключается в индивидуализации дома за счет придания каждой секции узнаваемого облика. Цветовое решение фасадов основано на сочетании нескольких оттенков серого и коричневого цвета. В нижней части фасада используются темные тона, верхние части отделываются в светлые тона.
Конструктивная схема здания - железобетонный каркас. Перекрытия - монолитный железобетон.
Наружные стены - ж/б панель с облицовочным слоем из керамической плитки,- навесной вентилируемый- фасад с облицовочным слоем из алюминиевого композитного материала. Внутренние стены и перегородки- газосиликатные блоки. Кровля плоская, с внутренним водостоком. Витражи и окна выполнить из ПВХ - профиля темно-серого цвета с заполнением однокамерным и двухкамернымстеклопакетом. Наружные двери металлические утепленные.
Благоустройство территории
Комплекс работ по благоустройству включает в себя планирование рельефа, устройство внутренних проездов, площадок, тротуаров, озеленение. Проектом предусмотрен основной подъезд к группе жилых домов со стороны ул. 2-й Оранжерейной. В территорию благоустройства жилого дома входят площадки для: игр детей, отдыха взрослых, под установку контейнеров ТКО и КГО, стоянки велосипедов, временного хранения автомобилей (до 8 часов), постоянного хранения автомобилей, малые архитектурные формы, озеленение.